HOME > 物件一覧 > 栗東岡C号地

栗東岡C号地NEW

ゆとりの敷地で広がりを楽しむ家
★ZEH住宅★

栗東岡C号地の画像
販売価格 3880万円(税込)
敷地面積 200.54㎡ (60.66坪)
延床面積 102.68㎡ (31.06坪)
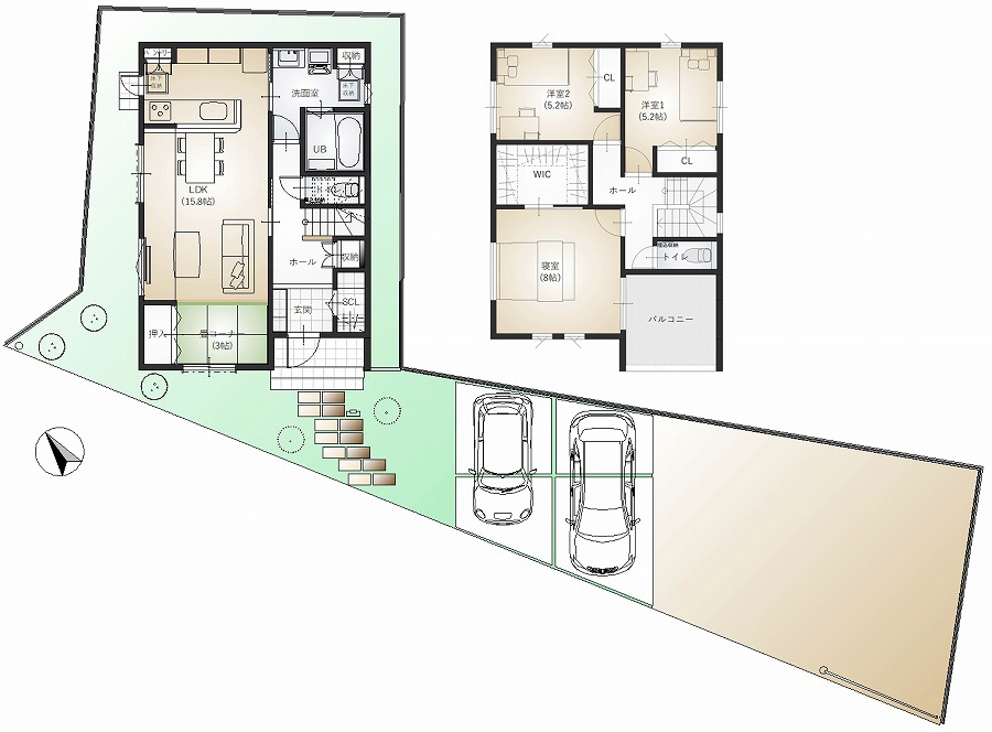
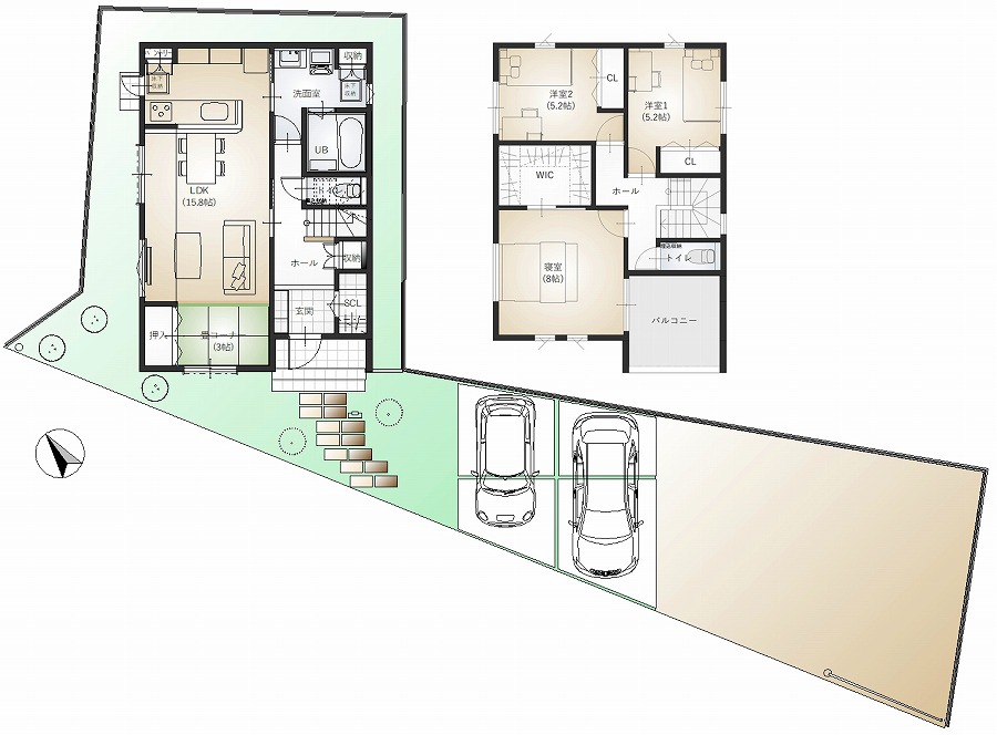
間取り 3LDK+WIC+畳コーナー
所在地栗東市岡
交通JR琵琶湖線「草津」駅 徒歩約23分
エアコン付 外構 照明 床暖房 ウォークインクローゼット 太陽光発電システム 駐車2台
収納や生活導線にもこだわり、ゆとりある60坪以上の敷地と調和する快適な暮らしを叶えます。

周辺環境

  • JR琵琶湖線「草津」駅 徒歩約23分
JR草津駅より
「京都」駅まで約19分
「大阪」駅まで約49分

※新快速を利用
※乗り換え時間を含みません。
※所要時間は時間帯により異なる場合があります。
カーナビご利用の方
栗東市岡143-1 付近

周辺施設

  • 交通機関
  • 学校教育機関
  • ショッピング
  • その他
  • JR草津駅

    JR草津駅
    徒歩約23~25分(約1830~1980m)

  • 治田保育園

    治田保育園
    徒歩約12~13分(約940~1030m)

  • 市立治田幼稚園

    市立治田幼稚園
    徒歩約12~13分(約950~1020m)

  • 市立治田小学校

    市立治田小学校
    徒歩約12~13分(約930~1020m)

  • 市立栗東中学校

    市立栗東中学校
    徒歩約26~27分(約2020~2110m)

  • フレンドマートD・小柿店

    フレンドマートD・小柿店
    徒歩約9~11分(約690~840m)

  • ファミリーマート栗東小柿十丁目店

    ファミリーマート栗東小柿十丁目店
    徒歩約9~11分(約670~820m)

  • クスリのアオキ目川店

    クスリのアオキ目川店
    徒歩約6~7分(約440~510m)

  • スギ薬局草津大路店

    スギ薬局草津大路店
    徒歩約11~12分(約910~980m)

  • 治田郵便局

    治田郵便局
    徒歩約5~6分(約330~430m)

物件概要

所在地栗東市岡
交通 JR琵琶湖線「草津」駅 徒歩約23分
敷地面積200.54㎡(60.66坪)
延床面積102.68㎡(31.06坪)
地目宅地
構造木造ガルバリウム鋼板葺2階建
完成令和8年2月予定
用途地域第二種中高層住居専用地域
建ぺい率60%
容積率200%
建築確認第R07確認建築滋建住00866号
設備関西電力・都市ガス・公営水道・本下水・【大阪ガスENETO(エネファーム)+スマイルーフ(太陽光発電)設置物件です。大阪ガスとの契約が必要になります。詳しくは営業スタッフまでお問い合わせ下さい。】
取引態様売主
情報更新日2026年01月10日
次回更新日2026年02月10日

アヤハ不動産株式会社 アヤホーム

所在地:〒525-0027 滋賀県草津市野村1丁目26−8 A.S野村ビル1F

店舗案内

アヤハ不動産株式会社 アヤホーム

〒525-0027 
滋賀県草津市野村1丁目26−8 A.S野村ビル1F

【受付時間】9:30~18:00 
【定休日】毎週火・水曜、GW、夏期、年末年始

ページトップ