HOME > 物件一覧 > 栗東市下戸山2号地

栗東市下戸山2号地

ネイビーモダンスタイルの家

栗東市下戸山2号地の画像
販売価格 3680万円(税込)
敷地面積 172.47㎡ (52.17坪)
延床面積 103.50㎡ (31.3坪)
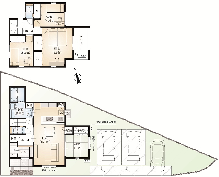
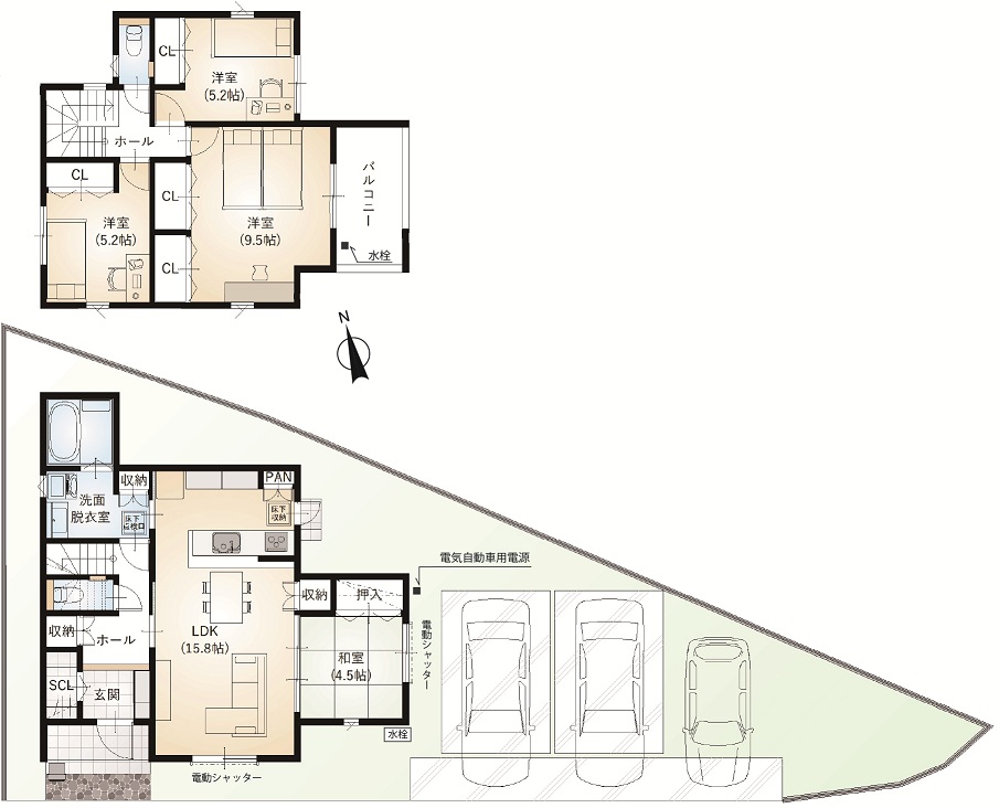
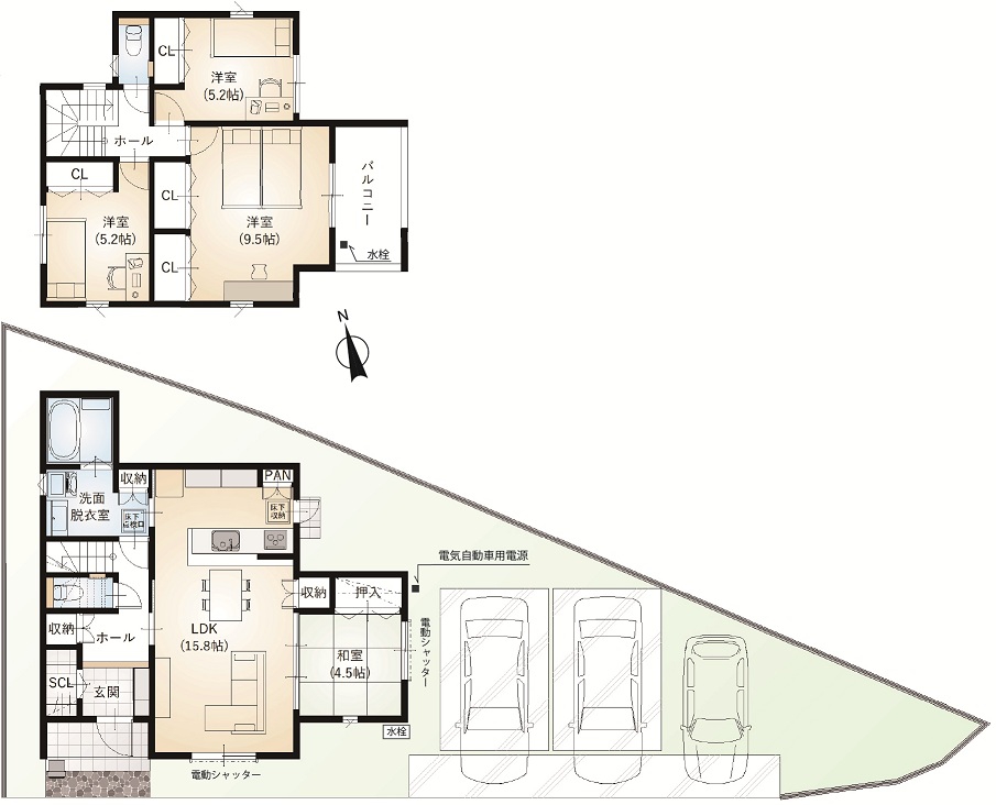
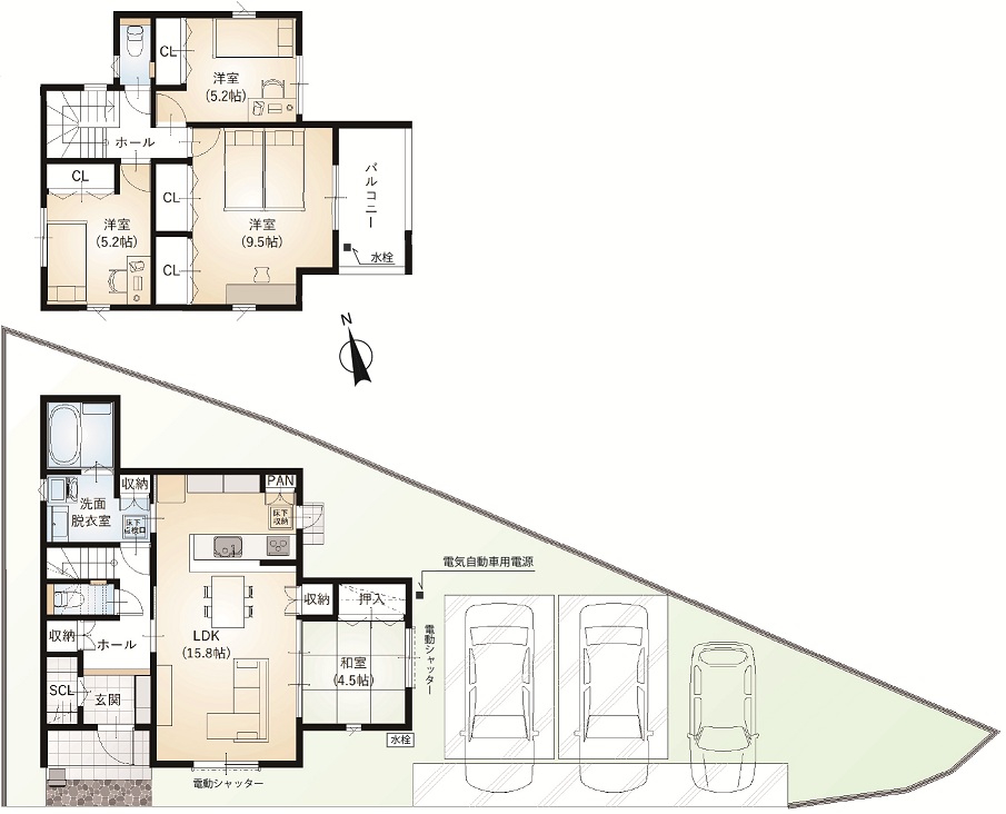
間取り 4LDK
所在地栗東市下戸山
交通JR草津線「手原」駅 バス11分「下戸山親交」徒歩約3分
即入居可 外構 照明 オール電化 駐車2台
深みのあるネイビーを基調に、
木目のアクセントとブラックを効かせたカジュ
アルモダンな住まい。

ネイビーの上品さに、木目のあたたかみとブ
ラックの引き締め感を組み合わせることで、
今どきらしいトレンド感と居心地のよさを両立。

飽きのこないシンプルさの中に、スタイリッ
シュさを感じさせる空間デザインです。

間取り図

周辺環境

  • JR草津線「手原」駅 バス11分「下戸山親交」徒歩約3分
カーナビご利用の方
滋賀県栗東市下戸山1540-2

物件概要

所在地栗東市下戸山1540-2
交通 JR草津線「手原」駅 バス11分「下戸山親交」徒歩約3分
敷地面積172.47㎡(52.17坪)
延床面積103.50㎡(31.3坪)
地目宅地
構造木造ガルバリウム鋼板葺2階建
完成令和8年1月
用途地域第二種中高層住居専用地域
建ぺい率60%
容積率200%
建築確認第R07確認建築滋建住00740号
設備関西電力・公営水道・本下水
取引態様売主
情報更新日2026年01月18日
次回更新日2026年02月18日

アヤハ不動産株式会社 草津営業所

所在地:〒525-0037 滋賀県草津市西大路町6-6

店舗案内

アヤハ不動産株式会社 アヤホーム

〒525-0027 
滋賀県草津市野村1丁目26−8 A.S野村ビル1F

【受付時間】9:30~18:00 
【定休日】毎週火・水曜、GW、夏期、年末年始

ページトップ